
Belle villa jumelée de 4.5 pièces à Saxon en Valais
Maison double 4.5 pièce(s) 150 m² - Saxon
Description
PROMOTION SUR PLANDécouvrez ce nouveau projet de 6 villas jumelées en PPE, idéalement situé à Saxon, au coeur du Valais, entre Sion et Martigny.
Pensées pour offrir un excellent compromis entre appartement et villa individuelle, ces maisons séduisent par leur architecture contemporaine, leur fonctionnalité et leur accessibilité.
Chaque villa bénéficie d'un espace de vie lumineux avec accès direct à la terrasse et au jardin, ainsi que d'une distribution idéale pour une vie de famille ou une personne seule.
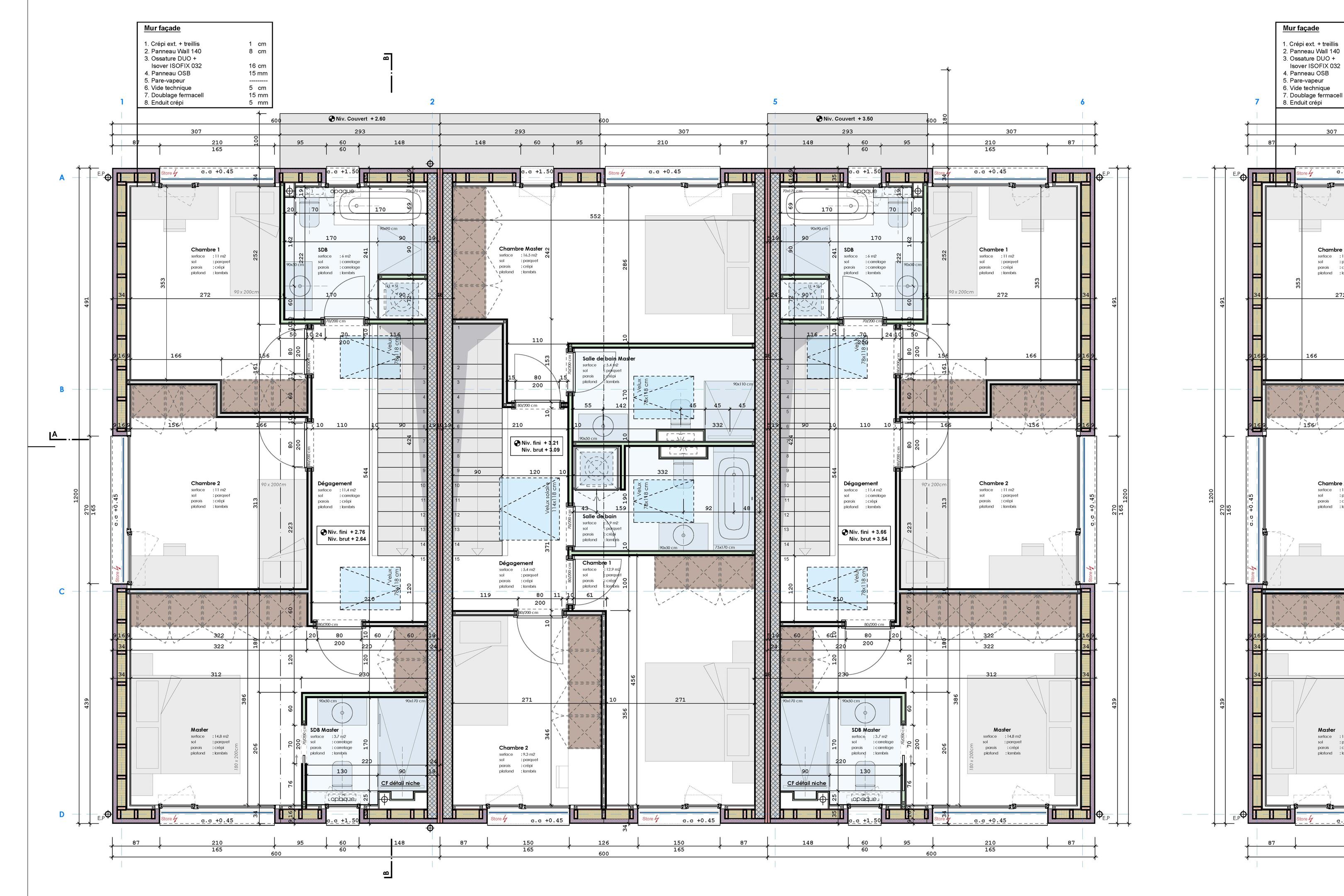
Descriptif de la villa B (au milieu) :
- 1 hall d'entrée
- 1 WC / lavabo visiteur
- 1 économat
- 1 cuisine ouverte avec îlot
- 1 salon spacieux
- 1 grande chambre parentale avec une salle de douche privative
- 1 salle de bain
- 2 chambres simple
- 1 terrasse
- 1 pelouse
- 2 places de parc valeur CHF 25'000.-
Situées à proximité de toutes les commodités ainsi que de la gare ferroviaire.
Villa A - CHF 770'000.- : disponible
Villa B - CHF 730'000.- : disponible
Villa C - CHF 770'000.- : disponible
Villa D - CHF 770'000.- : disponible
Villa E - CHF 730'000.- : disponible
Villa F - CHF 770'000.- : disponible
Offre spéciale pour la première villa vendue, intéressé?
Les surfaces et informations mentionnées sont fournies à titre indicatif et non contractuel. Elles sont basées sur les plans actuels du projet et peuvent faire l'objet de modifications. Seuls les documents officiels (plans d'exécution, acte de vente, règlement PPE) font foi.
Détails des pièces
- Cuisine
- Economat
- Hall d'entrée
- Local technique
- Séjour
Chambres
- Chambre double / parentale : 1
- Chambre simple / enfant : 2
Salles d'eau
- Salle de bain : 1
- Salle de douche : 1
- Total WC : 8
- WC lavabo : 1
Nombre de box, garages et places de parc
- Place de parc extérieure
- 2
Environnement
- Village
Exposition
- Est
- Ouest
- Sud
Proximité
- Aire de jeux
- Banques
- Commerces
- Restaurant
- Sortie autoroute
- Transports publics
Equipement primaire
- Eau
- Réseau communal
- Energie
- Réseau électrique
Equipement technique
- Ascenseur
- Non
- Chauffage principal
- Pompe à chaleur air-eau
- Internet
- Oui
- Largeur des places de parc
- Normal
- Mode de chauffage
- Au sol
- Téléphone
- Oui
A disposition pour tout renseignement complémentaire à info@roquimmo.ch ou au 027 565 09 69 (en cas d'absence au bureau l'appel est dévié sur le portable)
| Caractéristiques ROQ-13212 | |
|---|---|
| Destination | A vendre |
| Zone | Résidentielle |
| Disponibilité | 01.07.2027 |
| Prix | CHF 730'000.- |
| Nombre de pièces | 4.5 |
| Surface habitable | 150 m2 |
| Année de construction | 2027 |
| Vue dégagée | |
| Place de parc | |
| Nombre d'étage(s) | 2 |